Type woning:
Vrijstaand
Bouwjaar:
1925
Perceeloppervlakte:
650 m2
Energielabel:
G
Woonoppervlakte:
147 m2
Inhoud:
556 m3
Aantal kamers:
6
Ligging:
Aan de opgang van de Westerscheldedijk en gelegen op een steenworp afstand van de Waardse polders ligt deze traditionele jaren dertig woning welke is voorzien van symmetrische en authentieke details waaronder glas in lood ramen, blinden en ingebouwde rolluiken.
De woning ligt op een grote kavel grond van 650m2.
Bouwjaar:1925
Woonopp: 147m2
Inhoud: 556m3
Perceelopp: 650m2
Energielabel: G
Indeling:
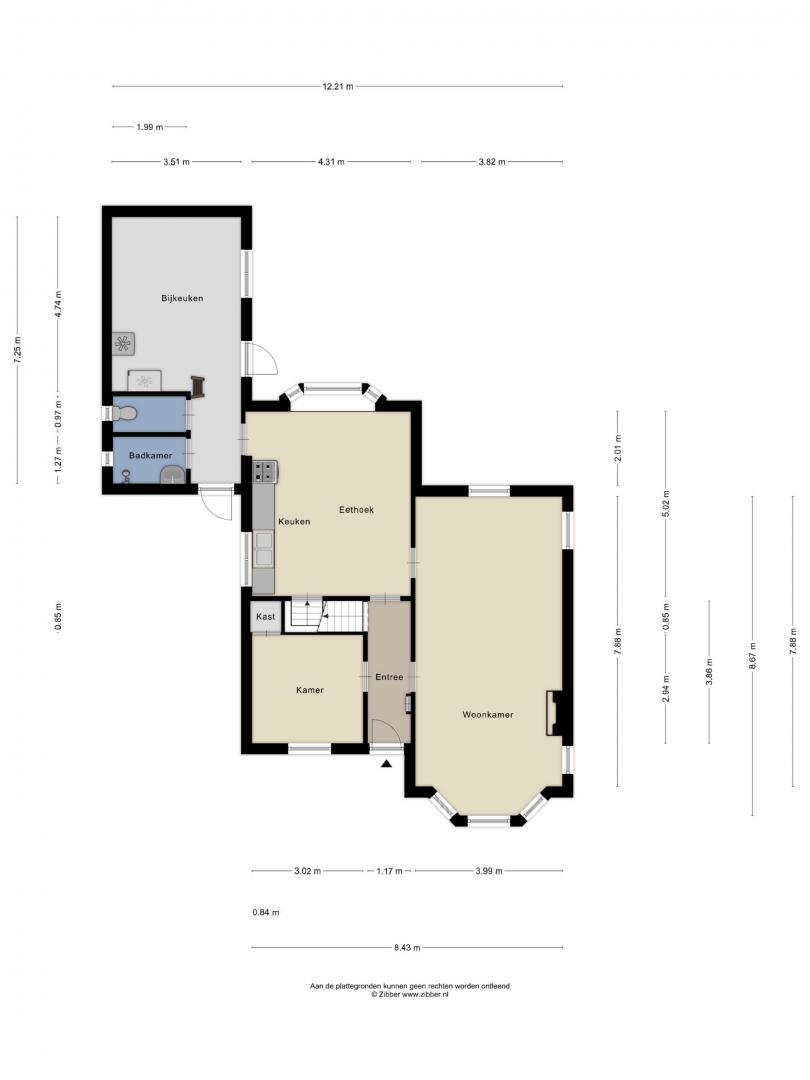
Middels de houten voordeur met het mooie siersmeedwerk is er entree in de hal met eenvoudige meterkast, toegang tot de woonkeuken, woonkamer, kantoor en de trapopgang naar de eerste verdieping.
Aansluitend de woonkamer, deze is met ruim 31m2 royaal te noemen en aan de voorzijde voorzien van een fraaie erker. Er is nog een gaskachel aanwezig maar die is meer voor de sier, de woning is voorzien van een cv-installatie.
Door de grote raampartijen hebben we hier veel daglicht en er is een zeer geschikte mogelijkheid om de keuken en woonkamer te verbinden.
Het kantoor heeft een vaste kast en bevindt zich aan de voorzijde van het pand.
De ontzettend gezellige gesloten woonkeuken is eenvoudig maar erg ruim van opzet, het is voorzien van een eenvoudig keukenblok zonder apparatuur en ook hier hebben we royaal daglicht door grote raampartijen, tevens is er een kelder aanwezig welke droog is.
Aansluitend de forse bijkeuken met ruime zolder. Hier bevindt zich de cv-opstelling (Nefit bj. 2012) en de aansluiting voor het witgoed. De badkamer is netjes maar eenvoudig evenals het ruime separaat toilet.
1ste verdieping:
Ruime overloop met toegang tot vier slaapkamers.
De twee grootste slaapkamers zijn voorzien van vaste kasten/afgewerkte knieschotten tevens is één ervan voorzien van een wasgelegenheid.
Op de overloop bevindt zich nog een vaste opbergkast en een ruime separate wasgelegenheid.
2de verdieping:
Bereikbaar middels een losse trap maar uiteraard kan hier een vlizotrap of zelfs een vaste trap gerealiseerd worden zodat de ruime zolder makkelijk toegankelijk en bruikbaar is.
Tuin:
Het grote perceel grond bevindt zich grotendeels aan de zuidwestzijde van het pand en het biedt veel mooie mogelijkheden tot het realiseren van een schuur of garage met aan beide zijden een opgang. Keuze dus waar u deze schuur of garage wilt realiseren, bovendien is er altijd een plek uit te kiezen waar het goed toeven is in de schaduw. De tuin bestaat deels uit verharding en deels uit gazon en volwassen beplanting met veel verschillende soorten bloemen en planten.
Algemeen:
Het mooie huis met zijn prachtige authentieke details heeft een rijke historie en veel van onze inwoners hebben hier wel eens aan de keukentafel gezeten.
Een alom geliefd en vertrouwd huis welke is gelegen op een mooie locatie vlakbij de Westerschelde en de uitgestrekte polders van Waarde.
Het huis biedt veel ruimte zowel binnen als buiten en heeft vele mogelijkheden voor het realiseren van een bijgebouw (navraag gemeente) maar het dient gerenoveerd te worden en er zijn wat aandachtspunten m.b.t. de staat van onderhoud. Wij vertellen u daar tijdens de bezichtiging alles over.
Het pand wordt verkocht op basis van ‘as is where is’.
Willen jullie graag op Waerde wonen én zijn jullie van plan de handen flink uit de mouwen te steken? Dan nodigen wij jullie van harte uit om dit zeer fraaie woonhuis te komen bezichtigen.
We vragen onze kijkers op voorhand naar een verklaring van gegoedheid van de hypotheekadviseur (voor meer uitleg kunt u een mail sturen naar info@vandijkmakelaardij.com).
Voor overige informatie of het aanvragen van een bezichtiging kunt u contact opnemen met Van Dijk Makelaardij info@vandijkmakelaardij.com
Aan deze, met de grootst mogelijke zorgvuldigheid samengestelde aangeboden informatie en/of diensten kunnen op geen enkele manier rechten worden ontleend. Informatie komt veelal van derden en Van Dijk Makelaardij en de aan dit kantoor verbonden medewerkers aanvaarden dan ook geen enkele aansprakelijkheid voor onjuiste of onvolledige informatie dan wel afwijkingen of onjuistheden m.b.t. oppervlakte of inhoudsmaten of onjuistheden m.b.t. jaartallen inzake het registergoed, opstallen of technische installaties.










































Heeft u interesse in deze woning? Reageren kan telefonisch, of via onderstaand formulier.