Type woning:
Vrijstaand
Bouwjaar:
1995
Perceeloppervlakte:
886 m2
Woonoppervlakte:
214 m2
Inhoud:
805 m3
Aantal kamers:
8
Ligging:
Aan de rand van het levendige dorp Heinkenszand staat deze royale, nog jonge vrijstaande villa. Het geheel is gebouwd in 1995 en hoogwaardig afgewerkt. Het onderhoud is up to date. De villa staat op een kavel grond van 886m2 met forse garage en heeft een inhoud van 805m3.
Bouwjr. 1995
Perceelopp: 886m2 eigen grond + 72 m2 huur tuingrond Gemeente Borsele
Inhoud: 805m3
Woonopp: 214m2
Energielabel: in aanvraag
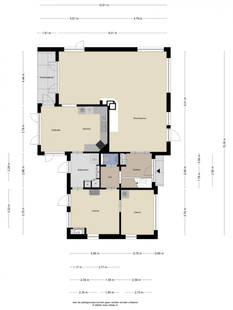
Indeling begane grond:
Entree in de royale hal met meterkast, separaat toilet met fonteintje en de trapopgang naar de eerste etage.
Door de dubbele openslaande deuren betreden we de grote -maar zeer gezellige- living welke is voorzien van een houten vloer gelegd in visgraatmotief en strak afgewerkt met bies. De L-vormige living is voorzien van een gashaard voor gezellige uren tijdens koude dagen.
Deze heerlijke kamer is zeer royaal voorzien van glaspartijen en het baadt dan ook in daglicht.
Aansluitend de gesloten woonkeuken met het keukenblok (2010) in U-vorm. Het geheel is uitgevoerd in hoogglans wit met een donker hardstenen werkblad met dito achterplaat voor een strakke afwerking. De keuken is voorzien van diverse inbouwapparatuur waaronder een combi oven/magnetron, Quooker voor direct kokend water, inductie kookplaat, een vaatwasmachine, een dubbele spoelbak en twee ingebouwde koelkasten*. Ook in de keuken is veel daglicht door de grote raampartijen met een prachtig uitzicht op de heerlijke tuin.
Verder lopend komen we in de bijkeuken welke is voorzien van de witgoedaansluitingen en veel vaste bergruimte.
Eveneens op de begane grond twee extra kamers met afmetingen van respectievelijk 10.40m2 en 15.35m2 welke dienst kunnen doen als kantoor/slaapkamer/studeerkamer en/of praktijkruimte.
1ste verdieping:
De overloop beslaat vrijwel de gehele breedte van het pand en i.c.m. de fraaie vide krijg je hier het gevoel je in een luxe hotel te bevinden. Aan deze overloop grenzen vijf prachtige slaapkamers waarvan er twee zijn voorzien van vaste kasten over de gehele breedte en twee slaapkamers hebben toegang tot het prachtige balkon waar het vroeg in de morgen heerlijk toeven is met een bakje koffie. Een andere slaapkamer + de badkamer hebben een frans balkon. De bovenverdieping is voorzien van een luxe badkamer met ingebouwde garnituur, een inloopdouche, dubbele wastafel en ligbad. Het tweede toilet op deze verdieping is apart van de badkamer. De bovenverdieping is voorzien van airco.
2de verdieping:
Bereikbaar middels vlizotrap. Het betreft een ruime bergzolder zonder stahoogte welke geheel is bevloerd en keurig is voorzien van vloerbedekking.
Garage:
Ook de garage is in de luxe uitgevoerde versie gebouwd. Met een afmeting van 4.27m2 x 9.58m2 (binnenwerks) is hij zowiezo royaal te noemen, maar hij is ook nog voorzien van een keurige plavuizen vloer, water, elektra, alarm, een elektrisch bedienbare sectionaaldeur én hij wordt verwarmd middels CV. De garage is gedeeltelijk voorzien van een zolder.
Verder in de tuin nog een lief tuinhuisje wat onderhoudsvriendelijk is uitgevoerd in kunststof.
Tuin:
Gelegen op het zuiden vind je hier altijd de zon maar ook meer dan genoeg schaduwrijke plekjes voor verkoeling. Het oprijpad en het terras zijn verhard, verder is het grotendeels gazon en volwassen beplanting. Het terrein is geheel omheind dus kinderen en/of huisdieren kunnen hier niet ontsnappen als dat niet gewenst is.
Er is ruimte genoeg voor kippen, een moestuin, een zwembad of een trampo, en sterker nog, het kan er allemaal tegelijk staan en dan nog is er ruimte zat over! Wat een heerlijke tuin en 100% privacy.
Algemeen:
Deze woning aan de Hoendervogellaan 15 te Heinkenszand is een luxe uitgevoerde woning welke op vrijwel de gehele begane grond is voorzien van vloerverwarming. Het pand is voorzien van HH kozijnen met dubbele beglazing en voorzien van een alarminstallatie voor zowel woning als garage. Het pand is voorzien van een Nefit Exellent HR CV voorziening (bwjr. 2003) en tevens is het pand voorzien van 4 airco’s waarvan twee op de begane grond en twee op de eerste etage.
De woning is op de 1ste etage voorzien van rolluiken en op de begane grond zijn voor het overgrote deel uitvalschermen aanwezig. Ook aan de achterzijde over de gehele breedte van woonkamer en keuken zijn elektrisch bedienbare uitvalschermen aangebracht. De woning is voorzien van een waterontharder en over de gehele begane vloer m.u.v. de woonkamer ligt een prachtige donkere keramische plavuis. Er is parkeergelegenheid voor meerdere auto’s op eigen terrein.
Er is nog veel meer te vertellen over deze prachtige woning maar liever laten we het u zien en beleven.
Voor meer informatie of het aanvragen van een bezichtiging kunt u een mail sturen naar info@vandijkmakelaardij.com
Voorafgaand aan de bezichtiging kunnen wij u om een financiële verklaring vragen.
Aan deze, met de grootst mogelijke zorgvuldigheid samengestelde aangeboden informatie en/of diensten kunnen op geen enkele manier rechten worden ontleend. Informatie komt veelal van derden en Van Dijk Makelaardij en de aan dit kantoor verbonden medewerkers aanvaarden dan ook geen enkele aansprakelijkheid voor onjuiste of onvolledige informatie dan wel afwijkingen of onjuistheden m.b.t. oppervlakte of inhoudsmaten of onjuistheden m.b.t. jaartallen inzake het registergoed, opstallen of technische installaties.
*niet in gebruik, de bewoners gebruiken een losstaande koelkast in de bijkeuken.




























































Heeft u interesse in deze woning? Reageren kan telefonisch, of via onderstaand formulier.