Type woning:
Tussenwoning
Bouwjaar:
1961
Perceeloppervlakte:
106 m2
Woonoppervlakte:
82 m2
Inhoud:
325 m3
Aantal kamers:
5
Ligging:
Gelegen op een geweldige locatie in het levendige vissersdorp YERSEKE bieden wij u deze ruime tussenwoning met forse uitbouw en vier slaapkamers aan. Het geheel is gelegen op een kavel grond van 106m2.
Bouwjr. 1961
Inhoud: 325m3
Woonopp: 82m2
Perceelopp: 106m2
Energielabel: in aanvraag
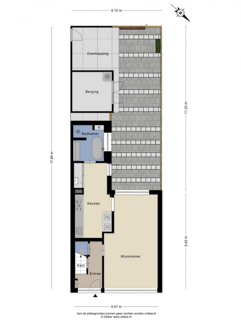
Indeling begane grond:
We komen binnen in de entree met separaat toilet, meterkast, trapopgang naar de eerste verdieping en toegang tot de woonkamer.
Zodra u binnenstap in deze woonkamer zult u direct de grote privacy ervaren, er is namelijk zowel aan de voor- als aan de achterzijde van de woning geen enkele inkijk en dat zal de meesten van u aanspreken.
De woonkamer heeft door de grote raampartijen veel daglicht en wanneer u tuindeuren wenst dan is dat makkelijk te realiseren.
De mooie keuken is half open en voorzien van diverse inbouwapparatuur waaronder een combi oven-magnetron, een 5-pits gaskookplaat en koelkast, een vaatwasser is aanwezig maar niet geïntegreerd in de keuken. De parallel opstelling voorziet in veel opbergruimte en de kleuren zijn zacht en rustig.
Verder is er een ruime vaste kast met daarachter de CV-opstelling (Intergas) met huurcontract. Als laatste vinden we op de begane grond de in 2020 geheel vernieuwde en luxe badkamer welke is voorzien van een vrijstaand ligbad, inloopdouche, dubbele wastafel met meubel en een designradiator. Het geheel is uitgevoerd in fraaie kleurstelling, het is een plaatje om te zien.
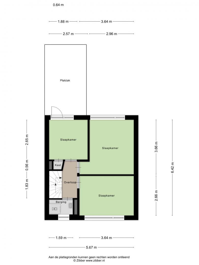
1ste verdieping:
Overloop en toegang tot drie slaapkamers waarvan er twee zijn voorzien van een vaste kast. Één slaapkamer is voorzien van een balkondeur waardoor er toegang is op de uitbouw.
De ruimte die voorheen de doucheruimte was doet nu dienst als washok (aansluitingen voor het witgoed bevinden zich dan ook hier) en dient opgeknapt te worden. Tevens is dit een uitermate geschikte plek om een tweede toilet te realiseren. Ook is er op de overloop nog een vast opbergkast.
2de verdieping:
Bereikbaar middels vast trap.
Mede door de plaatsing van het grote dakkapel kon hier een ruime en vierde slaapkamer worden gerealiseerd. Het dakkapel is geheel uitgevoerd in kunststof en dus onderhoudsvriendelijk.
Tuin:
Gelegen op het zuidoosten heb je in deze heerlijk achtertuin deels schaduw en deels zon, de ideale combinatie dus!
Achterin de tuin staat een berging met een gesloten en open gedeelte, via het zit gedeelte is er nog een achter uitgang dus u heeft feitelijk twee maal een vrije achterom in deze tuin.
Algemeen:
We presenteren u hier een heel fijne en ruime tussenwoning welke op een steenworp afstand ligt van de haven van Yerseke en twee minuten lopen van het strandje (Oosterschelde). De ligging is ondanks de tussenpositie zeer vrij te noemen en dat vinden wij dan ook één van de grote pluspunten van dit huis!
Het sanitair en de keuken zijn hartstikke mooi en netjes maar met jonge kinderen heeft deze woning wel wat schilder en behangwerk nodig.
De woning is voorzien van houten kozijnen en -m.u.v. één raampje- voorzien van dubbele beglazing. Op de 2de verdieping is een airco unit geplaatst en een gedeelte van de uitbouw en achtergevel is voorzien van onderhoudsvriendelijk kunststof bekleding.
Een nieuwe lik verf, een rol behang en eventueel een realisatie van een tweede toilet op de 1ste verdieping, dat is alles wat deze woning nodig heeft.
Groot genoeg voor een heel gezin en betaalbaar voor de starters, deze woning is geschikt voor een grote doelgroep!
Voor meer info of het aanvragen van een bezichtiging kunt u een email sturen naar info@vandijkmakelaardij.com
Aan deze, met de grootst mogelijke zorgvuldigheid samengestelde aangeboden informatie en/of diensten kunnen op geen enkele manier rechten worden ontleend. Informatie komt veelal van derden en Van Dijk Makelaardij en de aan dit kantoor verbonden medewerkers aanvaarden dan ook geen enkele aansprakelijkheid voor onjuiste of onvolledige informatie dan wel afwijkingen of onjuistheden m.b.t. oppervlakte of inhoudsmaten of onjuistheden m.b.t. jaartallen inzake het registergoed, opstallen of technische installaties.










































Heeft u interesse in deze woning? Reageren kan telefonisch, of via onderstaand formulier.